■ 施工事例 中古マンション+リノベーション3
築32年の中古マンションを購入された施主様からのご依頼です。
現在は、お子様お一人とご夫婦の三人家族です。
将来的には、もう一人お子様が欲しいとのことで、家族四人で住めるお家を想定して提案しました。
【Befor】
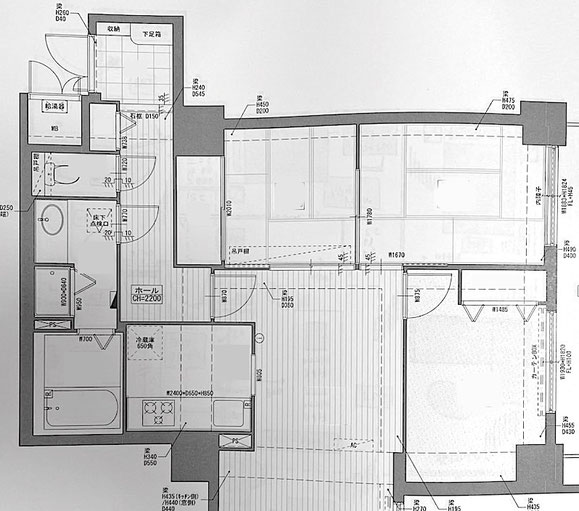
お部屋の間取りは3LDKで、和室が2部屋、洋室が1部屋。
水回りや建具類、お部屋の雰囲気等は築年数を感じさせるものでした。
施主様からの大まかなご要望は
1、将来的に子供2人にお部屋を与えてあげたい。(寝室1部屋・子供2部屋)
2、その上で、リビングスペースを大きくしたい。
3、ウォークインクローゼットを作りたい。
4、キッチン・トイレ・洗面台・室内建具を交換したい。
5、床とクロスを貼り直してほしい。
というご要望でした。
施主様からのご希望をもとに弊社でプランニングを行い、大きくリノベーションする箇所として、
1、現状の洋室を解体し、1つの大きなリビングスペースに変更する。
2、家族全員が見渡せるよう、対面キッチンに変更する。
3、現状のキッチンスペースをウォークインクローゼットに変更する。
4、子供部屋にも光が入るように、室内窓を設置する。
5、住設設備、建具、床、クロス類はおしゃれなものに変更する。
上記5点を大きなリノベーション箇所としてプランニングしました。
【現況図面】
↓
【提案図面】
【提案パース】
↓
【After】
暖かく可愛らしい内装をイメージして施工しました。
室内フローリング(オークL45遮音複合FL)、建具や住設機器が明るくなったことにより、お部屋全体が明るい印象になりました。また、開口箇所のアーチはお部屋の大きなアクセントになっています。
・キッチン・カップボードはLIXILのリシェルに変更しました。
・室内窓はLIXILのデコマドを使用しました。
・建具はPanasonicのベリティスを使用しました。
・洗面台はミラタップのフィオレット、ミラーはステムズミラーを使用。下台の代わりにオープン棚にしました。
・基本照明はダウンライトへ変更しました。
・インターホン子機が設置されている箇所はニッチを作成。
・洗面所にリネンを作成しました。
・カップボード上に飾り棚を作成しました。
ご相談・現地調査(採寸)・ご提案・お見積り等、全て無料です。
お気軽にお問い合わせして下さい。
店舗デザイン(設計/施工)とリノベーションを
ローコストで実現!神戸・大阪



































